
Informationen Baugebiet - Kamen
Baugebiet: Klimaschutzsiedlung

Der Rat der Stadt Kamen hat in seiner Sitzung am 27.02.2020 gem. § 41 Abs. 1 der Gemeindeordnung für das Land Nordrhein-Westfalen (GO NRW) das Planverfahren 36 Ka-Me als Satzung beschlossen.
Der Haupt- und Finanzausschuss der Stadt Kamen hat in seiner Sitzung vom 30.11.2011 den Beschluss zur Aufstellung des Bebauungsplanes Nr. 36 Ka-Me „Wohnbebauung südlich Dorf Methler“ gefasst. Am 08.11.2017 beschloss der Umwelt- und Klimaschutzausschuss, dass der Bebauungsplan im Sinne einer Klimaschutzsiedlung zu qualifizieren ist.
Der Rat der Stadt Kamen hat in seiner Sitzung vom 10.03.2016 das integrierte Klimaschutzkonzept für die Stadt Kamen (IKSK) als wichtigen Bestandteil zum kommunalen Umwelt- und Klimaschutz beschlossen. Dieses benennt als Maßnahme für den Klimaschutz in der Bauleitplanung die Schaffung der räumlichen Voraussetzungen für erneuerbare Energien. Mit der Konzeption einer Klimaschutzsiedlung wird die Ausrichtung und Gestaltung der Gebäude durch die zu treffenden Festsetzungen zur überbaubaren Grundstücksfläche und zur Gebäudehöhe so vorgesehen, dass eine optimale Solarenergienutzung möglich wird. Die städtebauliche Konzeption berücksichtigt dabei die Kriterien, die für eine Aufnahme in das Programm „100 Klimaschutzsiedlungen“ des Landes NRW maßgeblich sind und eröffnet somit den künftigen Bauherren im Plangebiet unterschiedliche Fördermöglichkeiten. Mit der Entwicklung einer Klimaschutzsiedlung können der Energieverbrauch und die Treibhausgasemissionen bei der Wärmeversorgung und der Stromproduktion reduziert werden, wodurch die Stadt Kamen einen Beitrag zur umwelt- und klimagerechten Stadtplanung leistet.
Download Bebauungsplan 2. Ausfertigung
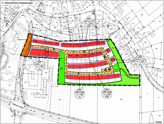
Download Städtebaulicher Entwurf - Stand 24.10.2018
Download Infoblatt Klimaschutzsiedlung
Verfahrensschritte
- 30.11.2011, Aufstellungsbeschluss gem. § 2 (1) BauGB
- 30.04.2018 - 30.05.2018, Frühzeitige Beteiligung der Öffentlichkeit und Behörden gem. § 3 (1) und § 4 (1) BauGB
- 28.10.2019 - 30.11.2019, Beteiligung der Öffentlichkeit und der Behörden gem. § 3 (2) und § 4 (2) BauGB
- 27.02.2020, Satzungsbeschluss gem. § 10 (1) BauGB
- 03.04.2020, Rechtskraft gem. § 10 (3) BauGB




